For Sale

Tyto Alba, Golden Valley, Charlton Horethorne, Somerset

£1,600,000
Guide Price
1
4
4
2,982 sq ft
Freehold
Guide Price
Barn 2

Video

Features

2,982 sq ft
Freehold
Open Plan Living
Four Double Bedrooms
Four En-Suite Bathrooms
Double Garage with EV Charging
Private, Gated Driveway
Garden with Far-Reaching Countryside Views
Kitchen/Dining/Living Room
Underfloor Heating - Air Source Heat Pump

Description

KingsLand Property are delighted to offer this outstanding development of four individually designed properties to be constructed alongside the newly renovated Golden Valley Farmhouse, set in the idyllic village of Charlton Horethorne on the Somerset/Dorset border. Built by renowned developers, Hopkins Estates, these high specification homes will retain existing architectural features whilst providing the very best example of contemporary luxury living.

At Golden Valley, each property provides open plan living with stylish kitchens, dining and living areas, a utility room, luxurious en-suite bedrooms and beautifully proportioned private gardens with a double garage and off-road parking. An Eco-responsible approach is at the forefront of these exceptionally designed homes which will include air source heating and thoughtfully planned, energy-efficient construction.

Tyto Alba – A wonderful opportunity to acquire a detached 4-bedroom barn conversion situated on the site of Golden Valley Farm.

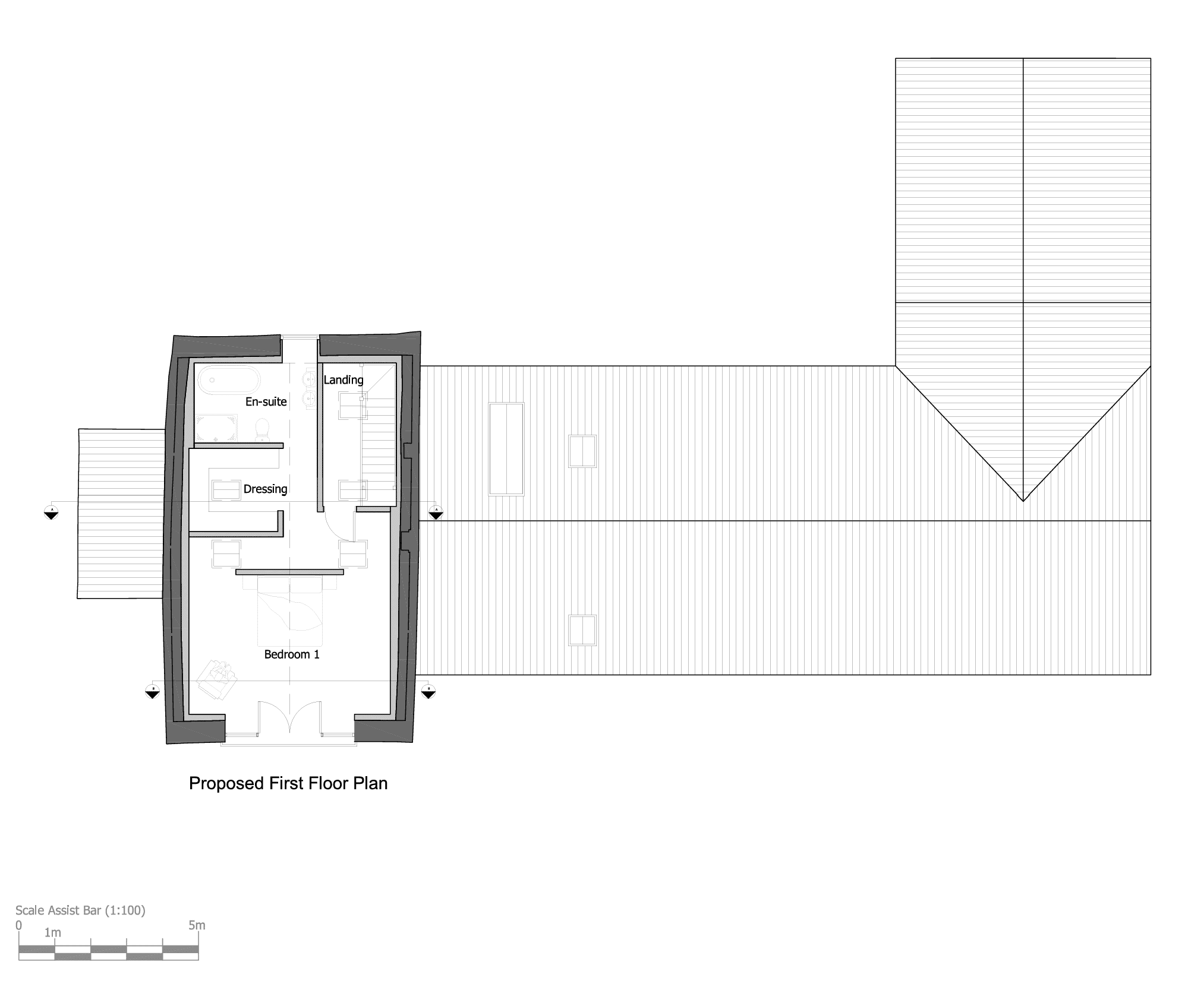
Ground Floor
Entering the hallway, a downstairs cloakroom with WC and large double cupboard provides storage. The left wing of the home opens into a welcoming open-plan kitchen, dining and living space, featuring a vaulted ceiling and expansive glazing that floods the room with natural light while framing far-reaching countryside views and providing direct access to the garden. The contemporary kitchen will be fitted with high-quality appliances, a central island and additional breakfast bar, offering generous worktop and entertaining space. Internal doors lead to the utility room, which has an external door to the garden and access to the double garage.

Three bedrooms are located on the ground floor, each benefitting from its own en-suite shower room. Bedrooms two and four enjoy double doors opening onto the garden and take full advantage of the countryside outlook.

First Floor
The first floor is dedicated to an impressive principal bedroom suite, complete with Juliet balcony offering uninterrupted rural views, a well-appointed en-suite bathroom with couples basins, and an adjoining dressing room.

Outside
The property is approached via a shared driveway from Water Lane, leading to a gated private driveway with double garage, parking for several vehicles, an EV charging point, four-bay secure cycle store and bin storage area. The rear garden is predominantly laid to lawn and complemented by a generous patio running the length of the property, providing an ideal space for outdoor dining while enjoying the rolling countryside beyond.

An early reservation will provide the opportunity to ensure that kitchen and bathroom aesthetics can be individualised to your own requirements.

Services: Mains water and drainage, electricity, EV charging point, air source heat pump, telephone and Wessex Internet fibre optic ultrafast broadband with data points and wireless access throughout; all subject to the usual utility regulations.

Location
The property is located on the Northern side of Charlton Horthorne, a pretty, little village lying between Sherborne (5.5 miles) and Wincanton (5.6 miles) on the Somerset/Dorset border. Charlton Horethorne has a thriving community with a popular public house, village shop, church, community hall and primary school. The nearby picturesque Abbey town of Sherborne has a wonderful array of boutique shops and eateries and in 2024 it was voted the best place to live in the South-West by The Times.

Footpaths and bridleways surround the village making it ideal for walking, cycling and riding. Sailing and water sports are available at Sutton Bingham Reservoir (near Yeovil) or on the South Coast. Horse racing can be enjoyed at courses in Wincanton, Salisbury, Bath and Exeter with Golf courses in Yeovil, Sherborne, Wincanton and Wheathill. The Newt country estate, Hauser and Wirth art gallery and renowned Clockspire restaurant are within a ten-mile radius.

The Gryphon secondary school in Sherborne is highly rated and is within easy reach. The area is noted for its independent schools with Sherborne Boys’ and Girls’ schools, Leweston, Bryanston, Clayesmore, Millfield, King’s Bruton, Sexey’s, Canford and Milton Abbey all within reasonable driving distance. Hazlegrove, Sherborne Prep and Port Regis preparatory schools are also all within proximity.

Travel links are excellent, the A303 can be joined at Wincanton and provides travel to London and the South-West. The M5 is joined at Taunton and provides access to Bristol, the Midlands and the North. Nearby railway stations at Sherborne, Templecombe, Castle Cary and Bruton provide travel to London Paddington and Waterloo within two hours as well as Bath, Bristol, Taunton and Exeter.

Directions
Coming from Sherborne or Wincanton take the B3145 to the centre of Charlton Horethorne Village. By the Kings Arms public house turn onto North Road and proceed for about 475 metres. At the fork turn right onto Maperton Road and at the first junction with Water Lane, is the entrance to Tyto Alba.

What3Words///parts.geek.dentistry

Council Tax Band: Not Yet Available
Tenure: Freehold
Local Authority: Somerset
EPC: TBC

NB. CGI is used for illustrative purposes only.

Viewing: Strictly by appointment through the agents.

Floor Plans

Download Brochure

EPC

Preferred Day(s):
Add to Wishlist
Please login to bookmark Close

Share:

Have you considered these?

Established in 2021, Kingsland Property and Land Agents are based in Wincanton, Somerset. Our team have a wealth of experience in residential and land sales in Somerset & Dorset.

1401146-1-696f673833f95
For Sale
Lancelot Drive, Wincanton, Somerset, BA9
1
3
2
1,004 sq ft
Freehold
Modern Detached Three-Bedroom Home with Driveway Parking and Well-Balanced Living Accommodation.
£312,500
Detached House
New House
For Sale
Hareturna House, Golden Valley, Charlton Horethorne, Somerset
2
4
4
3,380 sq ft
Freehold
Luxury Detached Four Bedroom New-Build Home in Charlton Horethorne.
£1,600,000
Detached House
1389338-3-695e36a46a78f
For Sale
Middle Ridge Lane, Corton Denham, Sherborne, DT9
3
4
3
1,952 sq ft
Freehold
Detached Four-Bedroom Family Home with Generous Driveway Parking, Double Garage and Well-Balanced Living Accommodation.
£650,000
Detached House

We will only use your details to contact you for Kingsland Property & Land Agents business.