- Four Bedrooms
- Hopkins Estates – Custom-Build Opportunity
- Premium Specification Offering Luxury Living
- Sought-After Village Location
- Set in Half an Acre
- Open Plan Living Area
- Separate Living Room With Multi-Fuel Burner
- Double Garage and Home Office
- Private Enclosed Gardens
- Pv Solar Panels
Blackford, Yeovil, Somerset, BA22
Property Summary
- Four Bedrooms
- Hopkins Estates – Custom-Build Opportunity
- Premium Specification Offering Luxury Living
- Sought-After Village Location
- Set in Half an Acre
- Open Plan Living Area
- Separate Living Room With Multi-Fuel Burner
- Double Garage and Home Office
- Private Enclosed Gardens
- Pv Solar Panels
Make an enquiry
Full Details
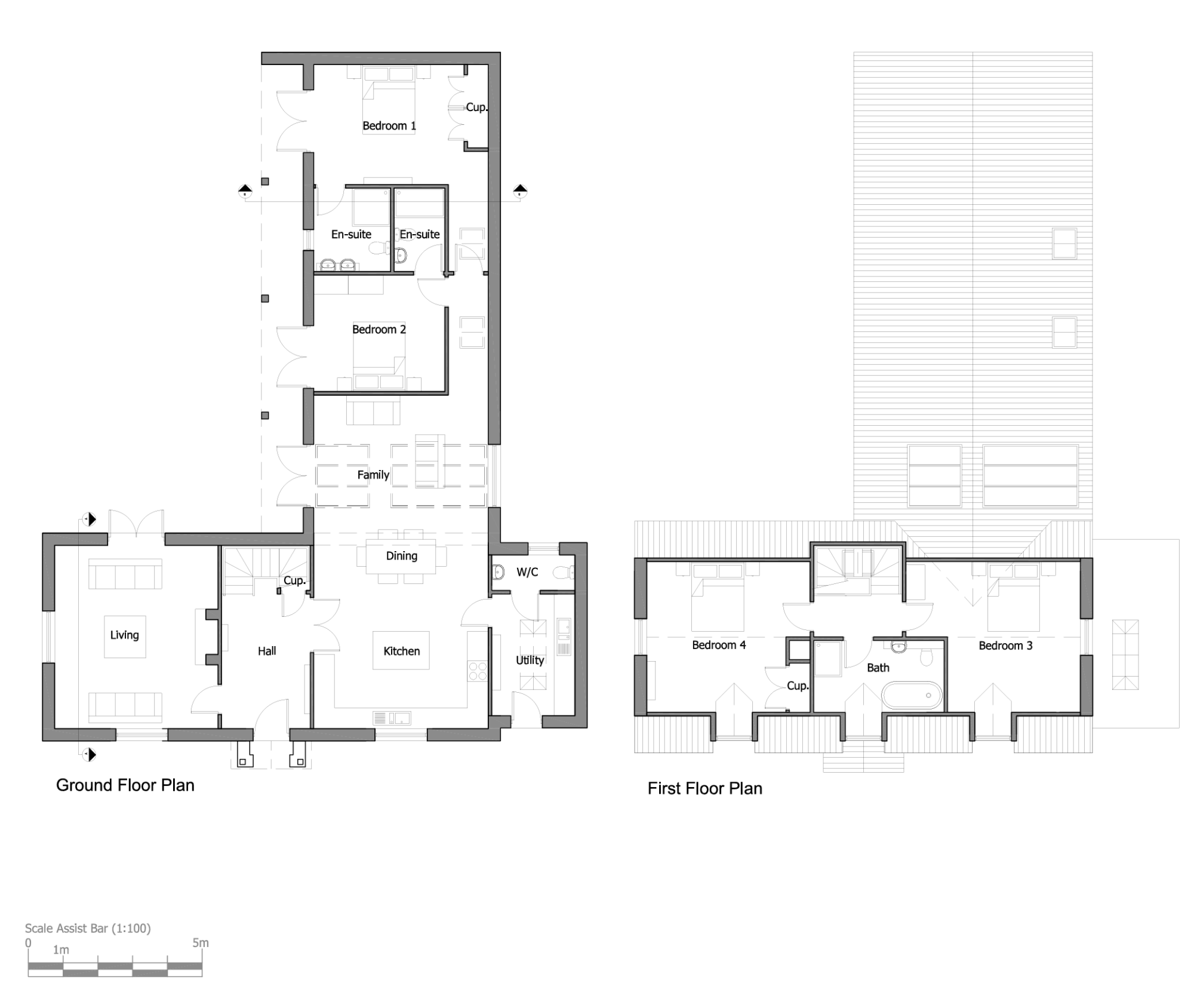
Ground Floor
A welcoming oak post-covered porch leads into a spacious entrance hall, setting the tone for the light-filled interiors. The living room enjoys a triple aspect with French doors opening directly to the garden. A fireplace with a multi-fuel burner provides a focal point, creating an inviting space for relaxing or entertaining.
Double doors open to the kitchen, dining and family room – the heart of the home. The fully fitted kitchen is designed with both style and function in mind, while the adjoining dining room accommodates a large table for family gatherings. A dual-aspect family area extends the living space further, complete with French doors to the garden and Velux windows that fill the room with natural light.
The utility room, conveniently located off the kitchen, features a ceiling lantern, sink, and direct access to the rear garden. A cloakroom with WC and basin completes this practical wing of the house.
From the family room, a corridor with Velux rooflights leads to two double bedrooms, both with en-suite shower rooms. Bedroom 1 is finished with built-in wardrobe, French doors to the garden, and a luxurious en-suite with twin basins. Bedroom 2 also enjoys French doors opening to the garden, blending indoor and outdoor living.
First Floor
Upstairs, two further spacious bedrooms provide versatile accommodation. Bedroom 3 is bright and airy with a dormer window, while Bedroom 4 benefits from built-in storage and another dormer window with views across the grounds.
The family bathroom offers both a bath and separate shower, with high-quality fixtures and finishes throughout.
Outside
Approached via Quarry Hill, Fair Oak is set back behind a gated entrance with a sweeping driveway. To the right sits the double garage with attached home office, finished with cedar cladding, an anthracite grey roller door and a red double Roman tile roof. The garage is also equipped with PV solar panels. The home office features a window for natural light, providing a perfect work-from-home environment.
Specification Options
Purchasers will have the opportunity to influence interior design choices, with Hopkins Estates recommending a premium specification:
• Bathrooms elegantly appointed with Laufen sanitaryware, VADO brassware, and Aqualisa digital showers.
• Luxury tiling from Spanish manufacturer Porcelanosa, combining timeless style with exceptional quality.
Fair Oak is more than just a house – it is a bespoke country home designed around your lifestyle, offering luxury living in a highly sought-after Somerset village.
Location
Blackford is a village within the county of Somerset in a designated Conservation area. Surrounded by rolling countryside this beautiful village is one of nine parishes that make up the Camelot Parishes. St. Michael’s Church is open daily and local events are held at the village hall. The idyllic stream running through Blackford and alongside The Granary is a tributary of the River Cam and joins the river Yeo at the Royal Naval Station at Yeovilton.
Local amenities can be found within a nine-mile radius of the village in Wincanton which is 4 miles to the East, Sherborne 7 miles to the South and Bruton 9 miles to the North. The neighbouring villages of North Cadbury and Charlton Horethorne both have a popular primary school and pub whilst Charlton Horethorne has a community-run village shop. Easy access to the A303 makes Blackford an ideal location for travel to London and the Southwest. Train services from Castle Cary and Bruton provide direct rail services to Paddington and Waterloo.
Blackford is in close proximity to a wide range of popular schools from both the state and independent sectors. The Gryphon School in Sherborne is very popular for secondary education and independent schools include Hazelgrove (only 4 miles), King's Bruton, the Sherborne Schools, Leweston, All Hallows, Port Regis and Millfield, all of which are within a 13-mile radius.
Blackford is close to several attractions such as Haynes Motor Museum, The Fleet Air Arm Museum, Longleat Safari Park and Centre Parcs at Longleat near Warminster, The Newt and Hauser and Wirth near Bruton, The Roman Baths and Spa in Bath, The Bath and West Showground in Shepton Mallet and The Clockspire in Milborne Port.
Services: Air Source Heat Pump, Optional Extra of PV and Battery Storage Subject to Grid Connection Agreement, Electricity, Super-Fast Broadband, EV Charging Point, Mains Water and Private Drainage System.
Council Tax Band: TBC
EPC: TBC
Local Authority: Somerset
Tenure: Freehold
Broadband & Mobile: Coverage can be checked at: checker.ofcom.org.uk
Flood Check: gov.uk/check-flooding
Please contact KingsLand Property on 01963 34455 for more information or to arrange a viewing of the site.
Floorplans are indicative.
CGI’s are for illustration purposes only.











