- Four Bedrooms
- Exceptional Single-Storey Barn Conversion (3500+ Sq. Ft)
- Stunning Village Setting In Compton Pauncefoot
- By Renowned Developer Hopkins Estates
- Beautiful Blend Of Contemporary Design & Traditional Character
- High Specification Finishes Throughout
- Impressive Open-Plan Kitchen/Living/Dining Space
- Utility & Boot Room With External Access
- Double Garage With Additional Store
- Expansive South-Westerly Facing Rear Garden
- Off Plan Opportunity
Arva Barn ,Compton Pauncefoot, Yeovil, Somerset, BA22
Property Summary
This is an opportunity to get involved at the early stages of the latest development by renowned Hopkins Estates.
This exceptional single-storey barn conversion offers over 3,500 sq ft of beautifully proportioned accommodation, combining contemporary living with the retained character of the original agricultural building. Constructed using local Blackford stone, a locally styled clay roof, and contemporary glazing, the property sits in an idyllic countryside setting within the sought-after village of Compton Pauncefoot.
- Four Bedrooms
- Exceptional Single-Storey Barn Conversion (3500+ Sq. Ft)
- Stunning Village Setting In Compton Pauncefoot
- By Renowned Developer Hopkins Estates
- Beautiful Blend Of Contemporary Design & Traditional Character
- High Specification Finishes Throughout
- Impressive Open-Plan Kitchen/Living/Dining Space
- Utility & Boot Room With External Access
- Double Garage With Additional Store
- Expansive South-Westerly Facing Rear Garden
- Off Plan Opportunity
Make an enquiry
Full Details
A striking oak post veranda runs along the front elevation, with expansive sliding doors that flood the interior with natural light and provides seamless access to the landscaped front garden. The design successfully balances traditional charm with modern efficiency, and the added option to include solar panels.
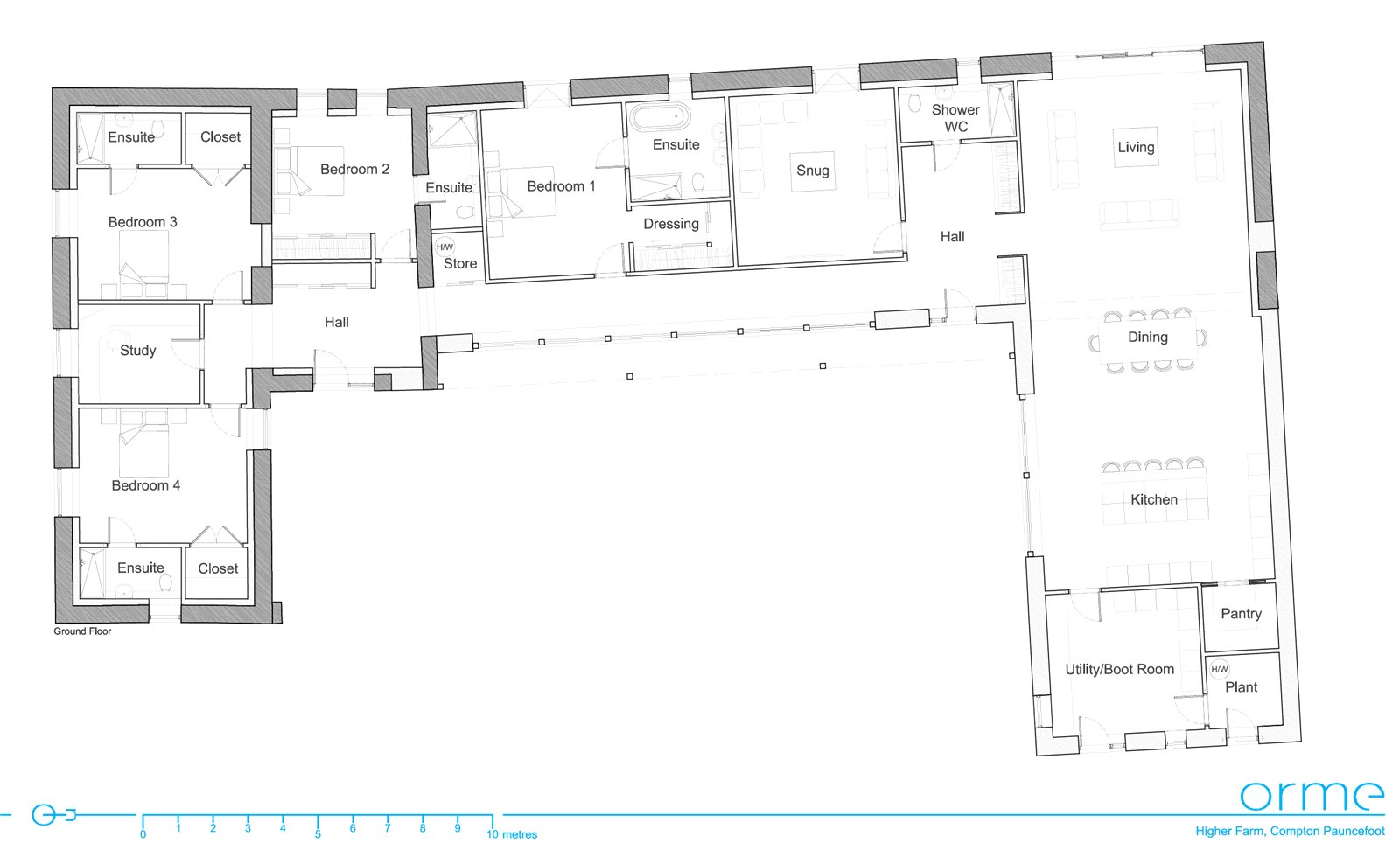
Accommodation
The single-storey home is arranged across two distinct wings, with access via an entrance hall in each, and connected by a stunning glazed hallway overlooking the veranda.
The left wing is primarily dedicated to bedroom and study accommodation. Accessed via a spacious entrance hall, the wing enjoys excellent natural light through the glazed frontage. The principal bedroom is a generously proportioned double room featuring French doors that open directly onto the rear garden. It is complemented by a well-appointed dressing room with built-in wardrobes and a luxurious en-suite bathroom fitted with a bath, separate shower, WC, and twin basins. Three further double bedrooms are located within this wing, each enjoying the benefit of its own en-suite shower room. Bedrooms two, three, and four are all well sized and thoughtfully laid out, with a combination of built-in wardrobes or separate closets providing excellent storage. Completing this wing is a dedicated study, ideal for home working or use as a quiet reading or hobby room.
The right wing of the property provides the main living accommodation. A spacious snug offers a comfortable secondary reception room and features French doors opening onto the rear garden, making it an ideal space for relaxation or informal entertaining. Adjacent to this is a contemporary shower room fitted with WC, basin, and shower, providing convenient facilities for guests.
The centrepiece of the home is the impressive open-plan kitchen, dining, and living area. This expansive space has been designed to flow seamlessly between zones, creating a sociable and functional environment for modern living. The living area features sliding doors that open onto the garden, while the dining area sits naturally between the living space and the kitchen, making it ideal for entertaining. The contemporary kitchen is fitted with high-quality appliances and is centred around a substantial island and breakfast bar, complemented by a separate pantry. Glazing adjacent to the kitchen opens to the front aspect, enhancing the connection between the indoor and outdoor spaces. A door from the kitchen leads into the utility and boot room, which provides a practical space for coats, shoes, and household appliances, as well as an external door. From here, access is provided to the plant room, which houses the hot water tank and benefits from its own external access.
Outside
To the front of the property, a private driveway lined with shrubs and planting, provides access to the double garage with an attached store, offering excellent space for parking and storage. A paved patio extends along the front elevation beneath the oak post veranda, creating an inviting area for outdoor seating and entertaining, while areas laid to lawn complement the frontage and provide a pleasant outlook from the principal rooms.
The rear garden is fully enclosed and enjoys a desirable south-westerly aspect, ensuring plenty of afternoon and evening sunlight. Generously sized and thoughtfully arranged, it offers a high degree of privacy and provides an ideal setting for family life, outdoor dining, and entertaining, all while enjoying the peaceful countryside surroundings.
Location
Compton Pauncefoot is an idyllic village in Somerset, home to the privately owned Compton Castle and close to the historic Crescent, a quarter circle of cottages. Local amenities can be found within a 10-mile radius, with Bruton and Castle Cary 5.6 miles to the North and Sherborne 7 miles to the South. The nearest GP surgery is in Queen Camel, just 3.3 miles away. Easy access to the A303 makes Compton Pauncefoot an ideal location for travel to London and the South-West. Train services from Castle Cary, Bruton and Templecombe provide direct rail services to Bath, Bristol, London Paddington and London Waterloo.
A wide range of popular schools from both the state and independent sectors are nearby. The Gryphon School in Sherborne is very popular for secondary education and nearby independent schools include Hazelgrove Prep in Sparkford (only 4 miles), King's in Bruton, Sherborne Prep, Sherborne Boys, Sherborne Girls, Leweston School near Sherborne, Perrott Hill in North Perrott, All Hallows near Shepton Mallet, Port Regis near Shaftesbury and Millfield in Street.
Compton Pauncefoot is close to The Camelot Public House in neighbouring South Cadbury, the renowned Clockspire restaurant in Milborne Port and Michelin Starred Osip near Bruton. The Newt near Bruton, awarded Southwest England’s Hotel of the Year 2025 by the Sunday Times, provides a yearly membership with the opportunity to attend a programme of activities and enjoy the stunning gardens, cyder orchards, cafes, fine dining restaurants, farm and butcher’s shop. Bruton, named the ‘new Notting Hill’ by British Vogue is a beautiful historic town housing the world-renowned contemporary art gallery Hauser and Wirth, Roth bar and DaCosta Italian restaurant. The historic market town of Sherborne is nearby with its stunning Abbey and rich variety of shops, cafes and restaurant. Local places of interest also include Wincanton Racecourse, Haynes Motor Museum, The Fleet Air Arm Museum, Longleat Safari Park, Centre Parcs and Spa at Longleat near Warminster, The Roman Baths and Spa in Bath and The Bath and West Showground in Shepton Mallet.
Council Tax Band: TBC
EPC: TBC
Local Authority: Somerset
Tenure: Freehold
BROADBAND & MOBILE: Coverage can be checked at: checker.ofcom.org.uk
FLOOD CHECK: gov.uk/check-flooding
Please contact KingsLand Property on 01963 34455 for more information or to arrange a viewing of the site.
Floorplans are indicative.
Computer generated images and photography are intended for illustrative purposes and should be treated as general guidance only.















