- Five Bedrooms
- Contemporary Country Home
- Idyllic Village Location
- Open Plan Living
- Utility and Boot Room
- Double Garage and Private Driveway
- Renewable Energy System
Plot Two, Cow Lane, Poyntington, Sherborne, Dorset, DT9
Property Summary
Plot 2 presents a rare opportunity to secure a substantial and individually designed new home in the desirable village of Poyntington. Situated on the western side of the former Mushroom Farm site, this bespoke residence is one of only two contemporary country homes available off plan, to be constructed by renowned local developer Hopkins Estates Ltd.
- Five Bedrooms
- Contemporary Country Home
- Idyllic Village Location
- Open Plan Living
- Utility and Boot Room
- Double Garage and Private Driveway
- Renewable Energy System
Make an enquiry
Full Details
Designed with both elegance and energy efficiency in mind, the home will combine natural local stone, warm cedar cladding, and a red double Roman tiled roof for a timeless yet modern finish. Powder-coated aluminium windows and doors will ensure sleek, low-maintenance detailing throughout.
Once complete, Plot 2 will offer over 3,600 sq. ft. of flexible and beautifully appointed accommodation over two floors. Occupying a private, elevated plot, this home will enjoy sweeping views across open countryside and rolling farmland—offering a perfect blend of rural tranquillity and modern living.
Accommodation Overview (Planned Layout)
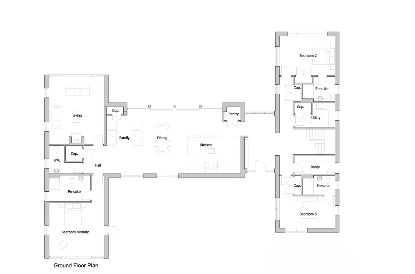
Ground Floor
The planned layout includes a wide entrance hall leading into a spacious open-plan kitchen, dining, and family room—designed as the social heart of the home. Sliding glass doors are specified to open onto the rear terrace, creating a seamless connection between indoor and outdoor living. The kitchen will feature a central island with breakfast bar, premium integrated appliances, and ample space for both formal dining and informal seating.
A utility room and a separate boot room with outside access offer practical solutions for day-to-day country life. A separate living room at the rear of the property provides a quieter reception space, also with direct garden access and open views.
Three double bedrooms are located on the ground floor, each with its own ensuite shower room—making this layout ideal for family living, guest accommodation, or future-proofing for single-level use.
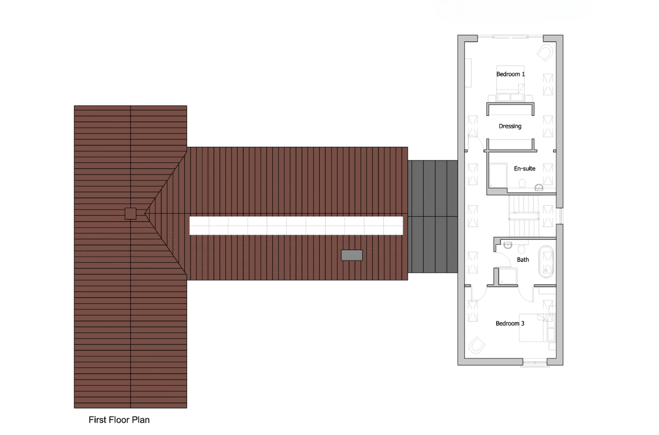
First Floor
Upstairs, the principal suite is designed to be a tranquil retreat, complete with a large double bedroom, magnificent countryside views, a fitted dressing room, and a luxury ensuite bathroom with digital fittings and high-end sanitaryware. A fifth double bedroom will have access to the main first-floor bathroom, which also serves the landing—providing flexible dual access for guests or family members.
Planned Specification
This home will be constructed to the highest standards with an emphasis on energy efficiency and long-term sustainability. Planned features include:
• Air source heat pump system
• Fully zoned underfloor heating with digital controls
• Mechanical ventilation with heat recovery (MVHR)
• 6kW solar PV system with 15kWh battery storage
• Smart Systems aluminium windows and doors
• High-performance insulation (target EPC rating: A)
• Fully integrated CAT6 cabling, TV points, and whole-home Wi-Fi
• Flooring throughout to include natural stone, engineered oak, and premium carpets
• Fully fitted kitchen with integrated, high-end appliances
• Designer bathrooms with digital showers and luxury fittings
• Electric vehicle charging point
External Features
Plot 2 is positioned on the western edge of this exclusive two-plot development, enjoying a peaceful and private setting with stunning views to the rear. The property will be accessed via a private driveway and will offer ample off-street parking in addition to a detached double garage with electric roller door, plus an adjoining storeroom—perfect for bikes, garden tools, or hobbies.
The rear garden will be laid mainly to lawn, with mature boundary trees offering natural screening and a sense of enclosure. A generous paved terrace will open directly from the open-plan living space, creating the ideal setting for outdoor entertaining and dining. Buyers will also have the option to personalise landscaping to their taste, including space for raised beds, a kitchen garden, or wildflower borders.
With its generous proportions, elevated outlook, and thoughtful layout, Plot 2 offers a rare chance to create a bespoke countryside home tailored to modern life.
Location
Poyntington is a quiet and picturesque village set amidst unspoilt countryside on the Dorset/Somerset border. Offering rural charm without isolation, the village enjoys easy access to excellent amenities and national transport links:
• Sherborne (7 mins) – Historic market town with outstanding schools, boutique shops, and direct trains to London Waterloo
• Bruton (25 mins) – Cultural hotspot home to Hauser & Wirth, At the Chapel, and award-winning restaurants
• Castle Cary (20 mins) – Mainline station with regular services to London Paddington (approx. 90 minutes)
• A303 & M3 – Convenient road access to London and the South East
• Bristol & Exeter Airports – Both reachable in under an hour
A wide selection of highly regarded schools can be found within easy reach of Poyntington, spanning both the state and independent sectors. For state education, The Gryphon School in nearby Sherborne is a popular choice, offering strong academic performance and excellent facilities. The area is also exceptionally well served by independent schools, including Hazelgrove Prep in Sparkford, King’s Bruton, Sherborne Prep, Sherborne School (Boys), Sherborne Girls, and Leweston School. Further afield, but still within comfortable reach, are Perrott Hill in North Perrott, All Hallows at Cranmore near Shepton Mallet, Port Regis near Shaftesbury, and Millfield in Street—renowned for both academic and sporting excellence.
Services: Mains water, electricity, solar panels and mains drainage
Council Tax Band: To be assessed
EPC Rating: A (estimated)
Flood Risk: gov.uk/check-flooding
Broadband & Mobile: Coverage can be checked at: checker.ofcom.org.uk
Tenure: Freehold
Viewings: Please contact KingsLand Property for more information or to arrange a viewing of the site.
Floorplans are indicative.
Photos are for illustration purposes and are taken from previous Hopkins Estates build projects.













