- Four Bedrooms
- Luxury New-Build Home
- Stunning Location Of Charlton Horethorne
- High Specification Home
- By Renowned Developer Hopkins Estates
- Beautiful Countryside Views
- Golden Valley Development Currently Under Construction
- Reserve Now
Golden Valley, Daw’s Lane, Charlton Horethorne, Sherborne, Somerset, DT9
Property Summary
- Four Bedrooms
- Luxury New-Build Home
- Stunning Location Of Charlton Horethorne
- High Specification Home
- By Renowned Developer Hopkins Estates
- Beautiful Countryside Views
- Golden Valley Development Currently Under Construction
- Reserve Now
Make an enquiry
Full Details
At Golden Valley, each property provides open plan living with stylish kitchens, dining and living areas, a utility room, luxurious en-suite bedrooms and beautifully proportioned private gardens with a double garage and off-road parking. An Eco-responsible approach is at the forefront of these exceptionally designed homes which will include air source heating and thoughtfully planned, energy-efficient construction.
Hareturna House - A wonderful opportunity to acquire a new-build 4-bedroom detached house situated on the site of Golden Valley Farm.
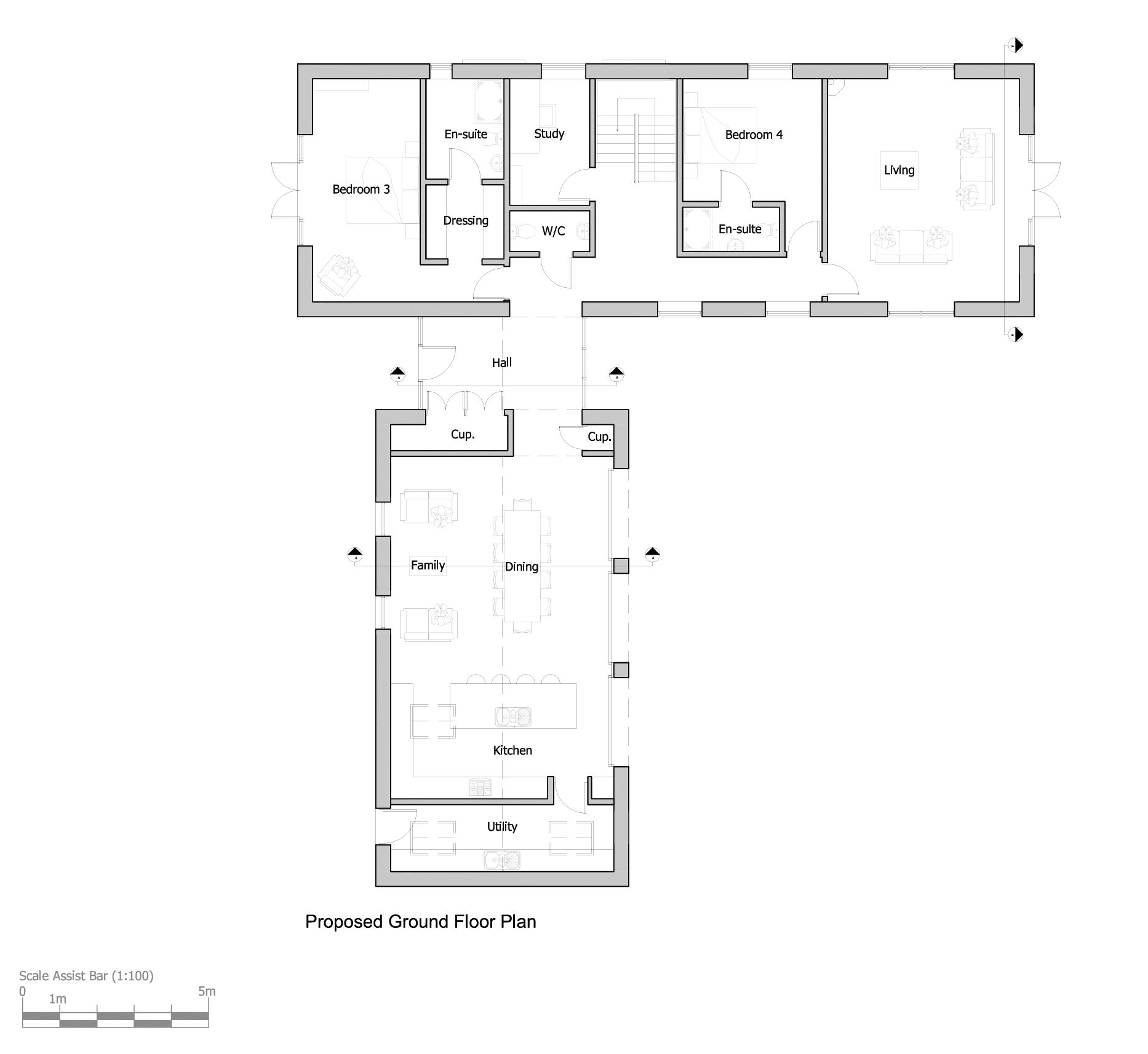
Ground Floor
Upon entering the property, the hallway offers excellent storage with a large double cupboard. The right wing of the home opens into an impressive open-plan kitchen, dining and living space, defined by a vaulted ceiling and expansive glazing that floods the room with natural light while framing far-reaching countryside views and providing seamless access to the garden. The contemporary kitchen will be fitted with high-quality appliances, a central island with breakfast bar, offering generous worktop and entertaining space. Internal doors lead to the utility room, which has an external door to the garden and access to the double garage. The left wing of the ground floor accommodates two double bedrooms, each benefitting from its own en-suite shower room, along with a study, a cloakroom WC, and a living room with French doors opening directly onto the garden.
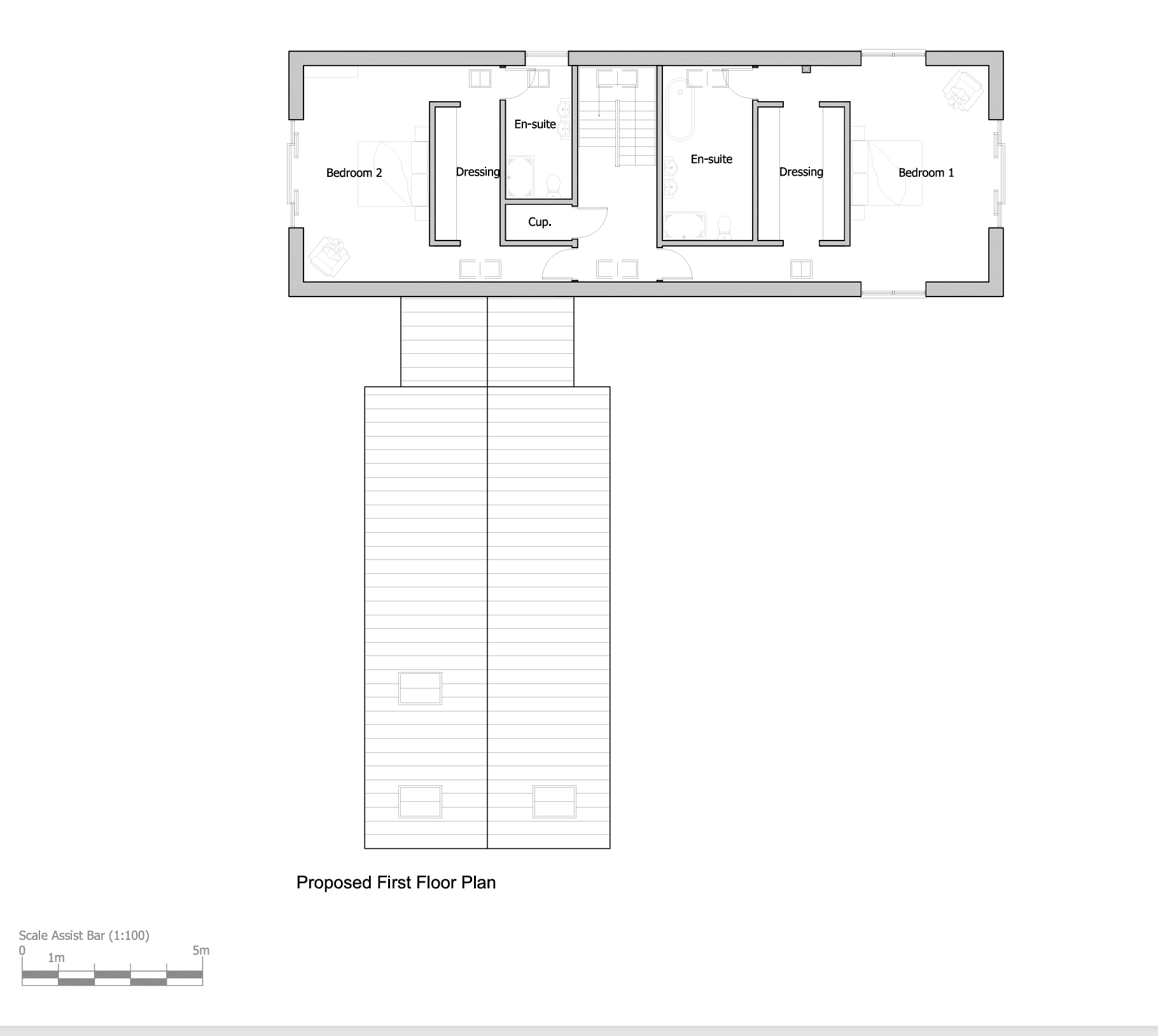
First Floor
The first floor offers two exceptional double bedroom suites. The principal bedroom is a particularly impressive space, enjoying a Juliet balcony with uninterrupted rural views and complemented by a luxurious en-suite bathroom with bath, separate shower, twin basins, and an adjoining walk-through dressing room. Across the landing, a further double bedroom also benefits from a Juliet balcony, an en-suite shower room and its own dressing area.
Outside
Externally, Hareturna House is approached from Daw’s Lane via a private gated driveway providing parking for several vehicles, alongside a detached double garage, EV charging point, four-bay secure cycle store and bin storage area. The rear garden is predominantly laid to lawn and is enhanced by a generous patio accessed from both the living room and the open-plan kitchen, dining and family space, creating an ideal setting for outdoor entertaining while taking in the open countryside beyond.
An early reservation will provide the opportunity to ensure that kitchen and bathroom aesthetics can be individualised to your own requirements.
Services: Mains water and drainage, electricity, EV charging point, air source heat pump, telephone and Wessex Internet fibre optic ultrafast broadband with data points and wireless access throughout; all subject to the usual utility regulations.
Location
The property is located on the Northern side of Charlton Horthorne, a pretty, little village lying between Sherborne (5.5 miles) and Wincanton (5.6 miles) on the Somerset/Dorset border. Charlton Horethorne has a thriving community with a popular public house, village shop, church, community hall and primary school. The nearby picturesque Abbey town of Sherborne has a wonderful array of boutique shops and eateries and in 2024 it was voted the best place to live in the South-West by The Times.
Footpaths and bridleways surround the village making it ideal for walking, cycling and riding. Sailing and water sports are available at Sutton Bingham Reservoir (near Yeovil) or on the South Coast. Horse racing can be enjoyed at courses in Wincanton, Salisbury, Bath and Exeter with Golf courses in Yeovil, Sherborne, Wincanton and Wheathill. The Newt country estate, Hauser and Wirth art gallery and renowned Clockspire restaurant are within a ten-mile radius.
The Gryphon secondary school in Sherborne is highly rated and is within easy reach. The area is noted for its independent schools with Sherborne Boys’ and Girls’ schools, Leweston, Bryanston, Clayesmore, Millfield, King’s Bruton, Sexey’s, Canford and Milton Abbey all within reasonable driving distance. Hazlegrove, Sherborne Prep and Port Regis preparatory schools are also all within proximity.
Travel links are excellent, the A303 can be joined at Wincanton and provides travel to London and the South-West. The M5 is joined at Taunton and provides access to Bristol, the Midlands and the North. Nearby railway stations at Sherborne, Templecombe, Castle Cary and Bruton provide travel to London Paddington and Waterloo within two hours as well as Bath, Bristol, Taunton and Exeter.
Directions
Coming from Sherborne or Wincanton take the B3145 to the centre of Charlton Horethorne Village. By the Kings Arms public house turn onto North Road and proceed for about 475 metres. At the fork turn right onto Maperton Road and at the first junction with Water Lane, continue straight and take the first right onto Daw's Lane. The entrance to Hareturna House is immediately on your right.
What3Words///mock.loses.bluffing
Council Tax Band: Not Yet Available
Tenure: Freehold
Local Authority: Somerset
EPC: TBC
NB. CGI is used for illustrative purposes only.
Viewing: Strictly by appointment through the agents.







